Por favor, intenta incluir tantos detalles como sea posible.
¿Estás interesado en esta propiedad? Contacta al propietario aquí en su lugar.
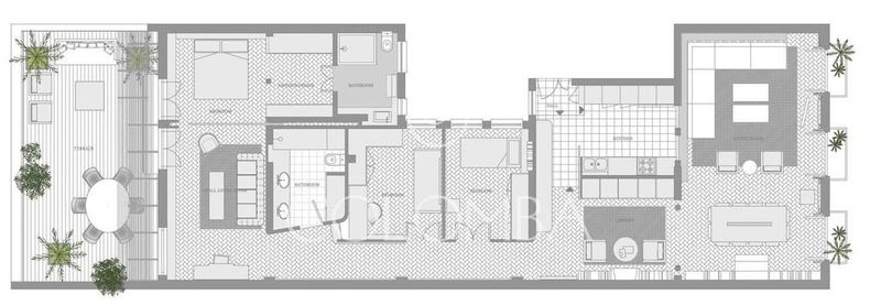
3 Habitaciones
-
Apartamento
211 m²
Copiado